Содержание
Монтаж вентиляторов дымоудаления
Монтаж вентиляторов дымоудаления реализует по России компания «ИНТЕХ» (Москва). Чтобы получить КП на монтаж вентиляторов, позвоните по телефону: . Отправить письменную заявку Вы можете на email или через форму заказа .
Перед началом монтажа крышного вентилятора необходимо проверить соответствие вентилятора выбранному типу стакана, клапана и поддона.
Установку вентилятора дымоудаления начинают с осмотра кровли и подготовки отверстия, диаметр которого соответствует диаметру монтажного стакана устанавливаемого на крышу.
Монтажный стакан в отверстие крыши устанавливается строго вертикально в соответствии со строительными правилами и нормами. Крепеж стакана осуществляют тем способом, который позволяет материал кровли. Крепление должно учитывать все возможные нагрузки на стакан после установки крышного вентилятора дымоудаления.
При установке вентиляторов с выбросом воздуха в стороны материал кровли в радиусе 2 метров от края стакана должен быть выполнен из негорючих материалов.
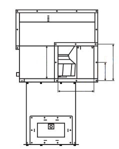
![]() | 1 — вентилятор 2 — стакан СК 3 — клапан 4 — поддон 5 — теплогидроизоляция здания 6 — несущая кровля здания |
Требования к изделиям
Вентиляторы, которые применяются для дымоудаления должны соответствовать определенным требованиям, чтобы выполнять свои задачи исправно. Среди них можно выделить:
- высокое качество сборки;
- термоустойчивость;
- химическая инертность;
- достаточная мощность;
- минимальный шум.

Для крышных вентиляторов дымоудаления должен использоваться металл наивысшего качества. Обычно для этих целей используют легированные стали, которые имеют покрытие для защиты от коррозии. Последнее является обязательным, т. к. корпус постоянно находится под воздействием осадков. Во время выброса дыма температура в шахте может достигать значительных значений. Материал вентилятора должен быть устойчив к этому. В документации должна быть указана работоспособность при 900°. Таким показателем обладают вентиляторы высшей ценовой категории. Для более дешевых агрегатов выносливость заявлена на уровне 500°.

Во время горения материалы выделяют ядовитые химикаты, а также активные вещества. Они разрушающе действуют не только на организм, но также и на предметы. Если корпус и лопасти вентилятора не будут к ним устойчивы, то смысла от такого агрегата не будет. Кроме того, двигатель должен быть герметично изолирован как от внешней среды, так и от крыльчатки. Материал корпуса и крыльчаток должен обладать химической нейтральностью к возможному воздействию. Перед покупкой необходимо произвести расчеты. Они позволят определить, какой объем воздуха и за какое время может быть выброшен. В зависимости от этого подбирается мощность двигателя вентилятора. Уровень шума такого прибора должен находиться в пределах установленных норм. Это особенно актуально в том случае, если задымление произошло только на одном или нескольких этажах.

Обратите внимание! Вентиляторы, которые используются в системах дымоудаления должны включаться как в автоматическом, так и в ручном режиме. В первом случае в дело вступает термодатчик, а во втором задействуется специальный пускатель. В случае отказа датчик должен оставаться запасной вариант.
Достоинства и недостатки
Использование вентиляторов дымоудаления имеет как сильные, так и слабые стороны. К преимуществам эксплуатации таких моделей относят ряд факторов.
- Вентиляторы обеспечивают высокую выживаемость людей и домашних животных, находящихся в помещении во время задымления.
- Мгновенное срабатывание датчиков приводит к автоматическому включению приборов. Это позволяет начать процесс удаления дыма с первых секунд возгорания.
- Возможность подключения оборудования к резервному источнику питания позволяет запускать систему даже в условиях отключения электроэнергии.
- Большой модельный ряд вентиляторов значительно облегчает выбор и позволяет приобрести прибор любого вида и мощности.

К минусам использования дымоудаляющих моделей относят сложный монтаж, требующий наличия специальных знаний и определённого опыта, а также необходимость регулярной проверки системы на работоспособность.
Разновидности
Вентиляторы дымоудаления классифицируются по ряду признаков, определяющим из которых является тип конструкции. По данному критерию приборы подразделяются на канальные, пристенные и крышные модели.
- Канальные приборы отличаются небольшими размерами, высокой производительностью и низким уровнем производимого шума. Канальный вентилятор состоит из крыльчатки, находящейся на одном валу с двигателем, вибрационных прокладок и корпуса. Модели предназначены для монтажа на вентиляционные системы любого типа, поэтому выпускаются как с круглым, так и с квадратным сечением. Кроме того, канальные приборы способны работать не только на вывод, но и на подачу воздуха. Стоимость моделей варьируется от 12 до 138 тыс. рублей.

- Пристенные вентиляторы состоят из электродвигателя, теплоизолированного кожуха, каркаса с рабочим колесом и патрубка, соединяющего прибор с воздуховодом. Вентиляторы такого типа могут присоединяться сразу к нескольким воздуховодам, что делает их наиболее востребованными при установке на вентиляционные системы, имеющие разветвлённую сеть. Работа пристенных моделей признана наиболее эффективной среди аналогов. Это объясняется настенным расположением прибора и возможностью мгновенного отвода загрязнённого воздуха ввиду более короткого воздуховода. Приобрести пристенную модель можно за 38-170 тыс. рублей.

- Крышные вентиляторы устанавливаются на крышах и отличаются высокой эффективностью работы на больших площадях. Управление приборами осуществляется при помощи щита, расположенного в специальном шкафу, расположенным в помещении. До недавнего времени модели считались наиболее эффективными, однако, с появлением пристенных приборов, отошли на второй план. По способу захвата и передачи воздушных потоков крышные приборы подразделяются на радиальные, осевые и диагональные.
- Радиальные (центробежные) вентиляторы включают в себя спиральный кожух, колесо с лопастями, двигатель и корпус, оснащённый входным и выходным отверстиями. Модели способны работать с загрязнённым твёрдыми частицами воздухом, главное, чтобы их концентрация в нём не превышала 100 мг/м3. Приборы не отличаются высокой температурной устойчивостью и рассчитаны на взаимодействие с воздушными потоками, температура которых не превышает 80 градусов. Кроме того, из-за особенностей строения лопастей, модели производят очень много шума, ввиду чего используются только на промышленных объектах. Ценовой диапазон радиальных моделей достаточно широк. Самый простой и маломощный прибор можно приобрести всего за 7 тыс. рублей, в то время как высокопроизводительные промышленные модели стоят от 100 тыс. рублей.

- Осевые вентиляторы гораздо выносливее радиальных и способны работать при температуре 400 градусов не менее двух часов. При повышении температуры дыма до 600 градусов прибор может работать около часа, что позволит вывести людей из помещения и принять меры к тушению пожара. Приборы отличаются высокой устойчивостью к воздействию химических соединений и могут быть установлены на предприятиях химической и фармацевтической промышленности. Модели оснащены трёхфазными асинхронными двигателями и способны перекачивать за час до 120 тысяч кубометров дыма. Стоимость приборов варьируется от 3 до 158 тыс. рублей.

- Диагональные вентиляторы являются более усовершенствованной модификацией осевых приборов и отличаются диагональным выходом всасываемого воздуха, в то время как у осевых приборов он движется вдоль оси. Устройства отличаются довольно низким уровнем шума и высокой производительностью.
Особенности монтажа вентилятора для дымоудаления
Монтаж вентиляторов дымоудаления может производиться несколькими способами, выбор которых зависит от некоторых факторов.
К основным из них относятся:
- тип кровельного покрытия здания (мягкий/твердый);
- величина угла наклона крыши по отношению к горизонту;
- внешний вид вентилятора;
- габаритные размеры узла дымоудаления.
Если вентилятор будет устанавливаться на недавно построенное здание, то область его монтажа необходимо заблаговременно подготовить.

- по обеспечению стяжки места монтажа;
- по установке специальных оцинкованных юбок и фартуков, которые располагаются по контуру корпуса вентилятора;
- по восстановлению целостности изоляционных слоев крыши.
Перед тем как будет начата установка крышных вентиляторов дымоудаления нужно убедиться, что область его монтажа и окружность в радиусе 3 метров выполнены из негорючих материалов.
Корпус вентилятора дымоудаления производят из стали, которая отличается повышенной прочностью, а ее поверхность покрыта специальным антикоррозионным слоем. Такие конструкции могут устанавливаться на твердых или мягких кровлях.

Наиболее сложным в исполнении является монтаж вентиляционных узлов на крышах, которые имеют мягкую кровлю. Несмотря на это следует обеспечить максимально высокую прочность и надежность крепления основания вентилятора на таких крышах.
На кровлях с твердым покрытием монтаж осуществляется существенно легче. В процессе монтажных работ важно соблюдать правильность монтажа корпуса системы дымоудаления и вентилятора, используя специальные крепления того же производителя.
Зачастую они предлагаются в комплекте с оборудованием. После завершения монтажа всех конструкционных элементов щели, которые остались, заделываются с помощью герметического состава.
Назначение и порядок проведения работ
Активное строительство объектов повышенной этажности для массового пребывания людей (спортивные комплексы, офисные и торговые центры, транспортные сооружения и другие многофункциональные здания) требует наличия на объектах инженерных сетей, обеспечивающих максимальную безопасность людей. Инженерные сети, обеспечивающие противопожарную безопасность, — неотъемлемая часть любого строительного объекта. Необходимость противопожарных систем оговорена в нормативных актах, регламентирующих строительные работы. Противопожарные системы должны быть предусмотрены во всех строительных проектах любого строящегося здания, сооружения или промышленного объекта.
Частью противопожарной защиты является установка системы дымоудаления (системы противодымной вентиляции). Задачей противодымной вентиляции является обеспечение защиты людей от опасного воздействия продуктов горения при пожаре во время эвакуации людей из опасной зоны. Вентиляция дымоудаления выполняет функции предотвращения отравлений людей угарным газом и предотвращения распространения дыма по всем помещениям горящего здания.
Основным элементом противодымной вентиляции является вентилятор дымоудаления. Для эффективного выполнения задачи дымоудаления применяются вентиляторы большой производительности, параметры которых рассчитываются в зависимости от конкретных требований и условий проекта. Такие вентиляторы имеют внушительный вес и размеры, а потому требуют тщательной проектной проработки и отработанной методики монтажа. Установка системы дымоудаления должна производиться квалифицированным персоналом, прошедшим специальную подготовку.
Монтаж крышных вентиляторов дымоудаления
Монтаж вентиляторов для системы дымоудаления зависит от типа вентилятора, от его весогабаритных параметров. В системах дымоудаления чаще всего применяются крышные вентиляторы, хотя возможно использование центробежных вентиляторов, устанавливаемых в специальных помещениях – вентиляционных камерах. Выбор типа вентилятора важно осуществить еще на стадии проектирования, чтобы рационально определить место установки агрегата. Для этого необходимо изучить поэтажные планировки здания, тип кровли, наметить направление выброса воздуха – либо вертикально вверх через проем в крыше, либо в вентиляционную шахту, либо горизонтально через проем в стене здания.
Узнать стоимость монтажа вентиляторов дымоудаления
К месту монтажа вентиляторы поступают, как правило, укомплектованными электродвигателями. Часто крыльчатка вентилятора конструктивно выполнена на одном валу с электроприводом.
Если вентиляторы предполагается размещать в вентиляционных камерах, то эти камеры должны иметь нормируемый предел огнестойкости, иметь достаточную площадь для удобного монтажа и обслуживания вентилятора и должны быть отделены от остальных помещений противопожарными перегородками.
Наилучшие условия для монтажа вентиляторов дымоудаления обеспечены в зданиях с плоской твердой крышей.
Монтаж поддона к стакану
К стакану, до монтажа вентилятора, необходимо прикрепить поддон. Перед установкой поддона в середине каждой стенки стакана на расстоянии 200 +/- 10 мм от основания следует просверлить отверстие диаметром 14 мм.
Конструкция поддона предусматривает наличие тяг. Крепление тяг поддона к боковым стенкам стакана осуществляется с помощью болтов, гаек и шайб М12.

Монтаж клапана к вентилятору
До установки вентилятора дымоудаления на стакан, следует присоединить к вентилятору обратный клапан.
Предварительно клапан подлежит внимательному осмотру. Створки клапана могут быть зафиксированы на заводе транспортировочными узлами. Для того чтобы их освободить, необходимо снять транспортировочные винты и проверить свободное, без заедания, открытие створок.
Далее следует приступить к креплению клапана на вентилятор. Для этого крышный вентилятор подвешивают на подъемном устройстве. Во избежание перекоса запрещается во время и после монтажа опускать вентилятор на клапан.
Некоторые производители для облегчения монтажа снабжают клапан и вентилятор специальными отметками. Если они присутствуют, достаточно просто совместить метки.
Монтаж вентилятора с клапаном к стакану
Вентилятор с клапаном крепится к стакану, вмонтированному в кровлю, в строго вертикальном положении. При этом крепежные элементы, шайбы и гайки М12, устанавливаются на шпильки, приваренные к стакану. На каждую шпильку следует навинчивать по две гайки. Все элементы крепления должны проверяться на силу зажима. Очередность выполнения работ должна быть строго прописана в технической документации, прилагаемой к изделию.
Общестроительные работы
После установки вентилятора дымоудаления, зазор между вентилятором и краем стакана заделывается строительным или специальным герметиком. Далее, при необходимости, выполняется цементно-песчаная стяжка, укладка гидроизоляции, обустройство юбок, фартуков и других элементов в строгом соответствии со строительными нормами и стандартами.
От качества монтажных работ зависит срок эксплуатации вентилятора и характеристики работы вентиляционной системы.
«ИНТЕХ» — инжиниринговая компания. На нашем ресурсе air-ventilation.ru Вы можете узнать необходимую информацию и получить коммерческое предложение.
Монтаж вентиляторов дымоудаления реализует по России компания «ИНТЕХ» (Москва). Чтобы получить КП на монтаж вентиляторов, позвоните по телефону: . Отправить письменную заявку Вы можете на email или через форму заказа .
Отзывы о компании ООО "ИНТЕХ":

Информация, размещенная на сайте, носит ознакомительный характер и ни при каких условиях не является публичной офертой.
Вентиляторы дымоудаления и общего назначения

Ключевой задачей вентилятора является создание направленного потока воздуха. Он применяется там, где естественное перемещение воздушных масс не обеспечивает необходимый уровень вентиляции. Выбирая вентилятор, нужно принять во внимание несколько важных факторов, среди которых: объем вентилируемого помещения, его назначение, а также конструкция вентиляционной системы, а точнее, длина воздуховодов, каналов или шахт. Остановимся на каждом из этих параметров более подробно.
Производительность вентиляторов
Этот ключевой для данного устройства параметр, как правило, является неизменным и определяется предприятием-изготовителем. Измеряется производительность вентилятора в кубических метрах воздуха, которые он способен пропустить через себя за один час. Производительность находится в прямой зависимости от мощности прибора.
Выбор вентилятора
Не стоит выбирать самую мощную модель из имеющихся в продаже, лучше предпочесть оптимальный вентилятор, соотнося его производительность с объемом комнаты и ее назначением. Определить объем довольно просто, для этого лишь необходимо умножить площадь помещения на его высоту. После этого вносим поправку на категорию использования. Если речь идет о спальном помещении или офисе, то стоит подобрать вентилятор с показателем производительности в 4 раза большим, чем объем помещения. Иными словами, устройство сможет пропускать через себя весь объем воздуха в комнате четыре раза в час. Если же речь идет о туалете или ванной, то поправочный коэффициент может достигать значения 10. Наибольшая производительность требуется вентиляторам, предназначенным для кухонного помещения. Здесь можно поднимать коэффициент до 15 или 20, в зависимости от того, расположена кухня в квартире или ресторане.
Давление вентилятора
Выбирая вентилятор, следует обратить внимание не только на его мощность и производительность, но и на создаваемое им давление. Это особенно важно в случае, если речь идет о канальной вентиляции. Давление вентилятора должно быть достаточным, чтобы прокачать поток воздуха по всей системе. В противном случае он будет работать вхолостую. Можно разделить вентиляторы на три категории по создаваемому давлению:
- до 100 Па
- от 100 до 400 Па
- более 400 Па
Если вентилятор необходимо установить в межкомнатную стену, то подойдет любая модель из первой категории. Однако для систем с воздуховодом длиной более 10 метров необходимо приобрести вентилятор, создающий давление больше 400 Па.
Пристенные вентиляторы дымоудаления
Сейчас, когда строительство объектов с массовым пребыванием людей, в том числе и повышенной этажности (торговые и офисные центры, многофункциональные здания, спортивные комплексы, транспортные сооружения) ведется очень активно, трудно переоценить значение систем, обеспечивающих безопасность пребывания в них.
- Пожарная безопасность в законодательстве
- Вытяжная противодымная вентиляция
- Пристенные вентиляторы дымоудаления
- Преимущества вентилятора
- Применение пристенных вентиляторов в промышленном строительстве
- Нормативное обоснование применения пристенного вентилятора
Пожарная безопасность в законодательстве
Мероприятия, обеспечивающие пожарную безопасность, очень важны. Федеральный закон Российской Федерации от 22 июля 2008 г. N 123-ФЗ «Технический регламент о требованиях пожарной безопасности» (далее — Федеральный закон № 123-ФЗ), Федеральный закон от 10 июля 2012 г. № 117-ФЗ «О внесении изменений в Федеральный закон «Технический регламент о требованиях пожарной безопасности» (далее — Федеральный закон № 117-ФЗ) приняты в целях защиты жизни, здоровья, имущества граждан и юридических лиц, государственного и муниципального имущества от пожаров. Он определяет основные положения технического регулирования в области пожарной безопасности и устанавливает общие требования пожарной безопасности к объектам защиты, в том числе к зданиям, сооружениям и строениям, промышленным объектам.

Положения настоящих Федеральных законов об обеспечении пожарной безопасности объектов защиты обязательны для исполнения при: проектировании, строительстве, капитальном ремонте, реконструкции, техническом перевооружении, изменении функционального назначения, техническом обслуживании и эксплуатации объектов.
В соответствии со статьями 85 и 138 Федерального закона № 123-ФЗ разработан и введен в действие 01.05.2009 Свод Правил СП 7.13130.2013 «Отопление, вентиляция и кондиционирование. Противопожарные требования», устанавливающие требования по пожарной безопасности к системам отопления, кондиционирования воздуха и вентиляции, в том числе противодымной, в помещениях зданий и сооружений.
Вытяжная противодымная вентиляция
Одним из типов систем, обеспечивающих противодымную защиту зданий, являются системы вытяжной противодымной вентиляции. Их задача совместно с системами приточной противодымной вентиляции, а также другими системам противопожарной безопасности — «. обеспечить защиту людей на путях эвакуации от воздействия опасных факторов пожара в течение времени, необходимого для эвакуации людей в безопасную зону, или всего времени развития и тушения пожара посредством удаления продуктов горения и термического разложения и (или) предотвращения их распространения » (часть 1 статьи 56 ФЗ № 123-ФЗ).
Необходимо отметить, что для выполнения поставленной задачи в составе систем вытяжной противодымной вентиляции применяются вентиляторы с большой производительностью (10 000÷100 000 куб. м/ч) Как правило, такие вентиляторы размещаются на кровле здания, присоединяясь непосредственно к вытяжным шахтам, или располагаются в отдельных, специально предназначенных для этого помещениях с нормируемым пределом огнестойкости — вентиляционных камерах.
Воздуховоды систем вытяжной противодымной вентиляции требуют определенного пространства для своего размещения. И если с наличием весьма габаритных шахт смирились и архитекторы, и застройщики, то наличие горизонтальных коммуникаций всегда вызывает большие проблемы при их прокладке. Поперечные балки, ребра плит, стесненная высота в запотолочном пространстве коридоров, где обычно размещаются и воздуховоды, и все остальные коммуникации — извечная проблема проектировщиков и строителей. Проблемы при размещении оборудования возникают также, если кровля здания имеет сложную конфигурацию или ограничена по несущей способности. Для решения вот таких задач и служат пристенные вентиляторы дымоудаления.
Пристенные вентиляторы дымоудаления
В нашей стране пристенные вентиляторы выпускаются уже более 10 лет. Они установлены на объектах различного функционального назначения в различных регионах страны — это детские сады и спортивные сооружения, складские комплексы и офисные здания, театры, музеи и торгово-развлекательные центры.

Вентилятор радиальный пристенный состоит из корпуса (1), в котором находится рабочее колесо. Электродвигатель вентилятора, расположенный вне высокотемпературного потока, помещен в специальный термоизолированный кожух (2). При необходимости вентилятор может иметь входной патрубок (3) для присоединения к сети воздуховодов.
Преимущества вентилятора
Во-первых, универсальность его применения. Это один из очень немногих видов вентиляторов, которые могут быть установлены непосредственно в обслуживаемом (т.е. защищаемом) помещении. Это является возможным благодаря специальной конструкции вентилятора: его огнестойкость, защитный кожух для электродвигателя, система охлаждения электродвигателя. И это не противоречит требованиям СП 7.13130.20013 п.7.12: « Вентиляторы для удаления продуктов горения следует размещать в отдельных помещениях с ограждающими строительными конструкциями с нормируемым пределом огнестойкости или непосредственно в защищаемых помещениях при специальном исполнении вентилятора ». Кроме того вентилятор может работать как с сетью воздуховодов системы вытяжной противодымной вентиляции, так и без сети (Исполнение 2).


Вентилятор может быть размещен и вне здания — на наружной стене (Исполнение 3)— это удачное, а иногда и единственное решение при кровле сложной конфигурации или конструкции. Или просто при отсутствии места внутри здания (зачастую реконструируемого) для прокладки коммуникаций. К тому же такое решение более экономично,так как оно не требует «капсулировать» (термоизолировать) двигатель для защиты от перегрева.
Пример: Трехуровневая стоянка для автомобилей. Из-за конструкции потолка не представлялось возможным проложить горизонтальные участки воздуховодов. Кровля легкая, ненесущая, на ней нет возможности установить крышные вентиляторы. Дополнительного места для устройства венткамеры систем вытяжной противодымной вентиляции тоже нет. Поставили пристенные вентиляторы на наружной стене для обслуживания каждого из уровней стоянки. Да, система получилась несколько дороже, но задача решена.

Второй пример: В реконструируемом здании с предписанием об установке системы вытяжной противодымной вентиляции для защиты коридоров места для воздуховодов и шахт не предусмотрены и не найдены. Согласовали с архитекторами прокладку коммуникаций по фасаду здания со стороны двора. Установили пристенный вентилятор, присоединив систему воздуховодов к вентилятору через входной патрубок, который может быть развернут под любым углом.

Вернемся к преимуществам пристенного вентилятора. Второе из них — удобство монтажа. Установка вентилятора не требует дополнительных работ, связанных с кровлей здания. В комплект дополнительной поставки могут входить комплект кронштейнов (4) и козырек-клапан (6), служащий для защиты от попадания осадков. При внутренней установке вентилятора необходимо предусмотреть дополнительный канал в стене для подачи воздуха, охлаждающего электродвигатель. Габариты канала могут быть различны для различных типоразмеров вентилятора. В этом случае рекомендуется включить в комплект и приставку (5), защищающую канал от попадания осадков. В особо стесненных условиях пристенный вентилятор может быть даже установлен «вверх ногами», т.е. двигатель наверху, корпус с рабочим колесом — под ним. Все это дает возможность проектировщикам проявлять свои творческие способности, находить и применять нестандартные решения при проектировании и строительстве уникальных объектов.
Применение пристенных вентиляторов в промышленном строительстве
Выше мы говорили о применении пристенных вентиляторов в системах вытяжной противодымной вентиляции общественных и жилых зданий. Но и в промышленном строительстве пристенные вентиляторы могут быть широко использованы. Однако при этом может встать вопрос о взрывозащищенном исполнении вентилятора. Применение взрывозащищенных вентиляторов особенно актуально на объектах химической, нефтехимической и нефтеперерабатывающей промышленности. При наличии сертификации по взрывозащите вентиляторы могут быть использованы для удаления продуктов горения из категорированных помещений и помещений зданий, расположенных на территории взрывоопасных установок.
Однако пристенный вентилятор не является панацеей, как, впрочем, и любое другое оборудование. Применяя его, необходимо учитывать условия его установки. Выброс пристенного вентилятора (либо он сам при наружной установке) должен быть « . на фасаде без оконных проемов или на фасаде с окнами на расстоянии не менее 5 м по горизонтали и по вертикали от окон и не менее 2 м по высоте от уровня земли или при меньшем расстоянии от окон при обеспечении скорости выброса не менее 20 м/с. » (СП 7.13130.20013, п. 7.11.г).
Для обеспечения требуемой скорости выброса продуктов горения можно использовать пристенный вентилятор со спиральным корпусом, что и обеспечит необходимые 20 м/с.
При использовании пристенного вентилятора без сети воздуховодов (Исполнение 2) необходимо также исключить возможность захвата воздуха, находящегося под дымовым слоем. Для этого необходимо, чтобы дымовой слой был толщиной порядка 1,5 м и более. Точнее — она зависит от температуры дымового слоя. Выходное отверстие вентилятора при этом должно находиться в верхней зоне резервуара дыма. Во всех остальных случаях при тонком дымовом слое рекомендуется применять пристенный вентилятор совместно с сетью воздуховодов и установкой противопожарных нормально закрытых клапанов в соответствии с требованиями СП 7.13130.2013, п.п. 7.8 и 7.9.
Нормативное обоснование применения пристенного вентилятора
Как мы видим, пристенный вентилятор является очень удобной разновидностью вентилятора системы вытяжной противодымной вентиляции. Однако до принятия СП 7.13130.2013 и его предшественника СП 7.13130.2009 защитить в государственной экспертизе применение пристенного вентилятора было достаточно проблематично. Рассмотрим соответствующий раздел СниП 41-01-2003 п.8.11, который гласит «Вентиляторы для удаления продуктов горения следует размещать в отдельных помещениях, выгороженными противопожарными перегородками 1-ого типа, предусматривая вентиляцию, обеспечивающую при пожаре температуру воздуха, не превышающую 60 °С в теплый период года (параметры Б) или соответствующую техническим данным изготовителя.
Вентиляторы противодымных вытяжных систем допускается размещать на кровле и снаружи здания (кроме районов с расчетной температурой наружного воздуха минус 40°С и ниже — параметры Б) с ограничением от доступа посторонних лиц. Допускается установка вентиляторов непосредственно в канале при условии обеспечения соответствующих пределов огнестойкости вентиляторов и каналов».
Тот же текст практически дословно присутствует в п. 5.12.более ранней редакции СНиП 2.04.05-91*. Подобные требования обусловлены тем, что для систем вытяжной противодымной вентиляции использовались в основном радиальные центробежные вентиляторы, устанавливаемые в специальных помещениях венткамер, либо на кровле здания, либо снаружи здания. Кроме того, допускалось использование осевых вентиляторов в каналах при соблюдении условий их специального исполнения. Позднее появились более удобные в монтаже крышные вентиляторы.
Применение пристенных вентиляторов наружного исполнения (Исполнение 3) не противоречит требованиям СНиП, а значит, возможно. Внутренняя установка формально не проходит по этим требованиям, так как при этом вентилятор монтируется не в специально предназначенном для этого помещении, а непосредственно в защищаемом, т.е. горящем. Вариант размещения вентилятора в канале, т.е. нахождение его непосредственно в среде удаляемых продуктов горения, можно рассматривать как частный случай. Однако давайте попробуем найти более корректное обоснование возможности использования пристенного вентилятора внутренней установки.
Чем вызвано требование размещения вентилятора системы вытяжной противодымной вентиляции в специально выделенном помещении? В первую очередь необходимостью дать ему возможность проработать во время пожара требуемое время и при нормируемой температуре (до 600 °С — максимальная температура, декларируемая всеми нашими нормативными документами, включая СП 7.13130.2013 п. 7.11.а), обеспечив требуемую подачу при заданном напоре. А, во-вторых, предотвратить распространение пожара вследствие высокой температуры на поверхности корпусных элементов. Для решения первой проблемы СНиП предусматривает вентиляцию, обеспечивающую температуру окружающей среды, предотвращающую перегрев электродвигателя вентилятора. Вторую задачу решает размещение вентилятора в вентиляционной камере выделенной противопожарными преградами. Посмотрим на пристенный вентилятор. Сам вентилятор размещен непосредственно в защищаемом помещении, следовательно, не требуется его выделение противопожарными преградами, что касается электродвигателя, то он, как было сказано выше, заключен в специальный термозащитный кожух. Кроме того, для предотвращений перегрева двигателя предусмотрена специальная самостоятельная вентиляция с подачей наружного воздуха через специальный канал в стене. Действенность всех этих мероприятий подтверждена соответствующими пожарными сертификатами на изделие.
Таким образом, мы выяснили, что пристенный вентилятор будет поддерживать свою работоспособность в течение требуемого времени, находясь непосредственно в защищаемом помещении. Теперь рассмотрим проблемы распространения пожара. В соответствии с требованиями СНиП, продукты горения по огнестойким воздуховодам выбрасываются наружу, проходя транзитом из помещения венткамеры, где установлен вентилятор дымоудаления, до покрытия или фасада. Воздуховоды и вентиляторы принимаются с требуемым пределом огнестойкости, венткамера выгорожена противопожарными перегородками 1-ого типа. Приняты все меры для предотвращения распространения пожара в процессе удаления продуктов горения за пределы здания. Что же происходит в случае применения пристенного вентилятора? Вентилятор располагается непосредственно в обслуживаемом помещении, и продукты горения выбрасывает тут же через наружную стену за пределы здания. В этом случае при соблюдении всех ранее цитируемых требований к организации выброса (СП 7.13130.20013, п.7.11, г и СниП 41-01-2003, п. 8.10, г исключается вероятность распространения пожара в процессе удаления продуктов горения за пределы помещения. Более того, в случае применения пристенного вентилятора процесс удаления продуктов горения за пределы здания значительно безопаснее (и дешевле, заметьте), чем в случае, предписываемом СНиП при применении центробежных радиальных вентиляторов. СНиП 2.04.05-91 вообще не предусматривал возможность выброса продуктов горения через стену в связи с неактуальностью этого вопроса в момент принятия нормативного документа.
Таким образом, появление корректировки в 7.11 СП 7.13130.2013, разрешающей установку вентилятора системы вытяжной противодымной вентиляции непосредственно в защищаемом помещении, не случайна, а продиктована новыми техническими решениями. И, в первую очередь, наличием пристенного вентилятора дымоудаления. Появление новой техники, возможно, потребует в будущем очередной корректировки нормативных документов.
Материал подготовлен специалистами производственного объединения «КЛИМАТВЕНТМАШ».
Источник https://www.air-ventilation.ru/Montazh-ventilyatorov-dymoudaleniya.htm
Источник https://www.mashprom.org/ventilyacyonnoe_oborudovanie/ventilyator_dlya_sistemy_ventilyacii/
Источник http://www.topclimat.ru/publications/pristennye-ventilyatory-dymoudaleniya.html
